
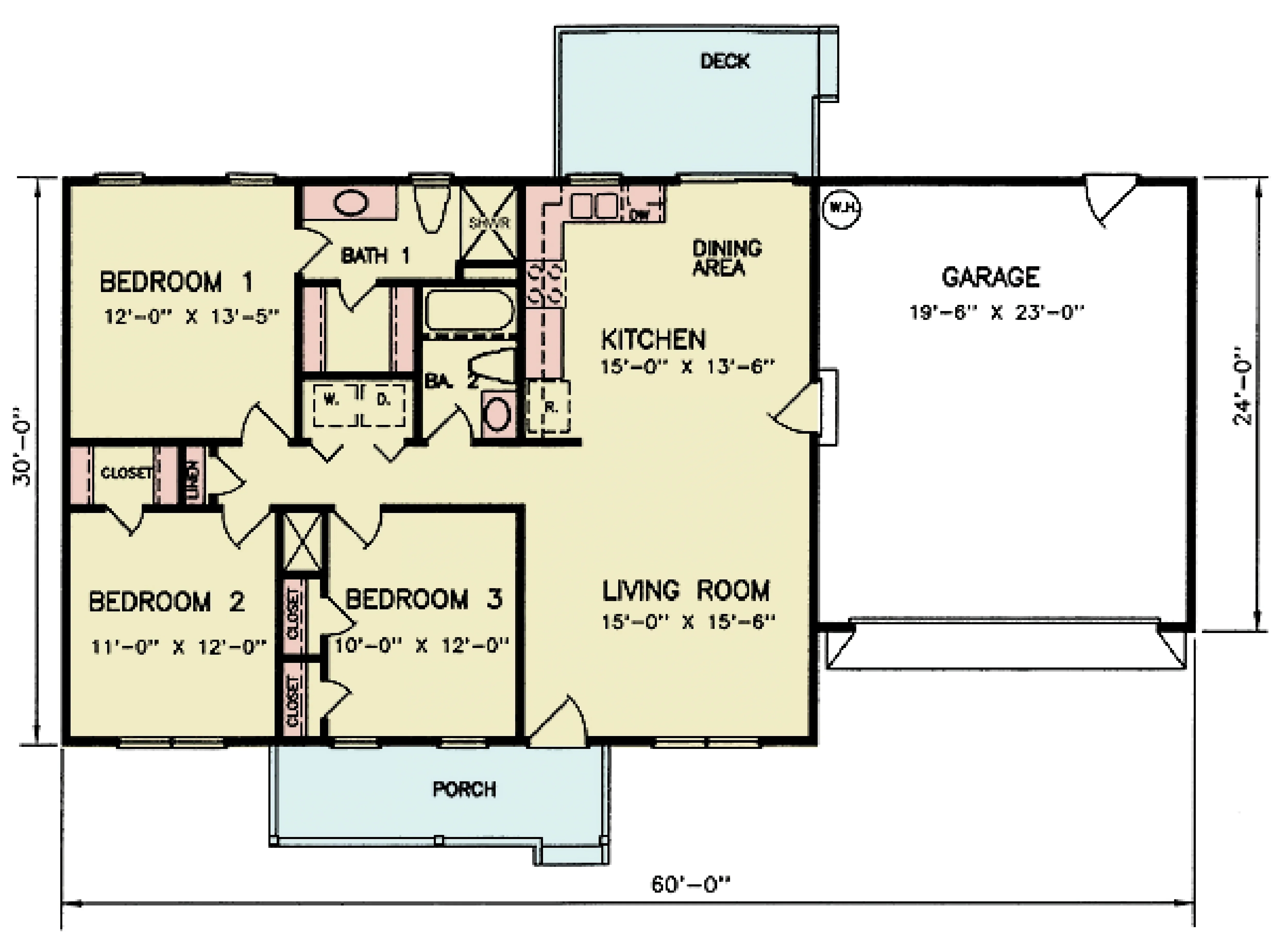
Modern One-Story Home with 3 Bedrooms & 2-Car Garage
This 1,269 sq. ft. one-story home offers a thoughtfully designed layout with three bedrooms and two bathrooms, making it an ideal choice for families, retirees, or those looking for a comfortable and efficient living space. The split-bedroom design ensures privacy, with the first-floor master suite featuring a walk-in closet for ample storage. The open-concept layout includes a keeping/family room, a kitchen island, and a walk-in pantry, creating a functional and inviting space for daily living and entertaining.
A key highlight of this home is its attached 435 sq. ft. two-car garage with a front-facing garage load, offering both convenience and curb appeal. The first-floor laundry room adds to the home’s efficiency, while the 10-foot ceilings provide an airy, spacious feel. Built on a slab foundation with 2x4 wall framing, stick-built roofing, and a 6:12 roof pitch, the home balances durability with modern design.
Measuring 40 feet wide by 48 feet 6 inches deep, this home is perfect for various lot sizes while maximizing indoor space. Whether used as a primary residence or an investment property, this home blends practicality, style, and comfort, making it a great choice for a wide range of homeowners.
This 1,269 sq. ft. one-story home offers a thoughtfully designed layout with three bedrooms and two bathrooms, making it an ideal choice for families, retirees, or those looking for a comfortable and efficient living space. The split-bedroom design ensures privacy, with the first-floor master suite featuring a walk-in closet for ample storage. The open-concept layout includes a keeping/family room, a kitchen island, and a walk-in pantry, creating a functional and inviting space for daily living and entertaining.
A key highlight of this home is its attached 435 sq. ft. two-car garage with a front-facing garage load, offering both convenience and curb appeal. The first-floor laundry room adds to the home’s efficiency, while the 10-foot ceilings provide an airy, spacious feel. Built on a slab foundation with 2x4 wall framing, stick-built roofing, and a 6:12 roof pitch, the home balances durability with modern design.
Measuring 40 feet wide by 48 feet 6 inches deep, this home is perfect for various lot sizes while maximizing indoor space. Whether used as a primary residence or an investment property, this home blends practicality, style, and comfort, making it a great choice for a wide range of homeowners.
Description
This 1,269 sq. ft. one-story home offers a thoughtfully designed layout with three bedrooms and two bathrooms, making it an ideal choice for families, retirees, or those looking for a comfortable and efficient living space. The split-bedroom design ensures privacy, with the first-floor master suite featuring a walk-in closet for ample storage. The open-concept layout includes a keeping/family room, a kitchen island, and a walk-in pantry, creating a functional and inviting space for daily living and entertaining.
A key highlight of this home is its attached 435 sq. ft. two-car garage with a front-facing garage load, offering both convenience and curb appeal. The first-floor laundry room adds to the home’s efficiency, while the 10-foot ceilings provide an airy, spacious feel. Built on a slab foundation with 2x4 wall framing, stick-built roofing, and a 6:12 roof pitch, the home balances durability with modern design.
Measuring 40 feet wide by 48 feet 6 inches deep, this home is perfect for various lot sizes while maximizing indoor space. Whether used as a primary residence or an investment property, this home blends practicality, style, and comfort, making it a great choice for a wide range of homeowners.





















