
Spacious 1,984 sq ft Home with Unique Layout
This thoughtfully designed 1,984 sq ft home features a distinctive layout that combines comfort and functionality. The first floor includes 992 sq ft dedicated to three cozy bedrooms, providing ample private space for family members. With a split bedroom design, the layout enhances privacy. A convenient first-floor laundry makes daily chores effortless, while vaulted ceilings in the common areas add an open, airy feel.
Ascend to the second floor, where you’ll discover the heart of the home—a welcoming family room and a well-appointed kitchen, complete with an eating bar for casual dining. The second floor also boasts a owner's suite with a luxurious bath featuring a double vanity sink. Additional highlights include a loft/balcony area, a hidden room, and access to a total of 429 sq ft of porch space, making this home perfect for entertaining or relaxing.
This thoughtfully designed 1,984 sq ft home features a distinctive layout that combines comfort and functionality. The first floor includes 992 sq ft dedicated to three cozy bedrooms, providing ample private space for family members. With a split bedroom design, the layout enhances privacy. A convenient first-floor laundry makes daily chores effortless, while vaulted ceilings in the common areas add an open, airy feel.
Ascend to the second floor, where you’ll discover the heart of the home—a welcoming family room and a well-appointed kitchen, complete with an eating bar for casual dining. The second floor also boasts a owner's suite with a luxurious bath featuring a double vanity sink. Additional highlights include a loft/balcony area, a hidden room, and access to a total of 429 sq ft of porch space, making this home perfect for entertaining or relaxing.
Description
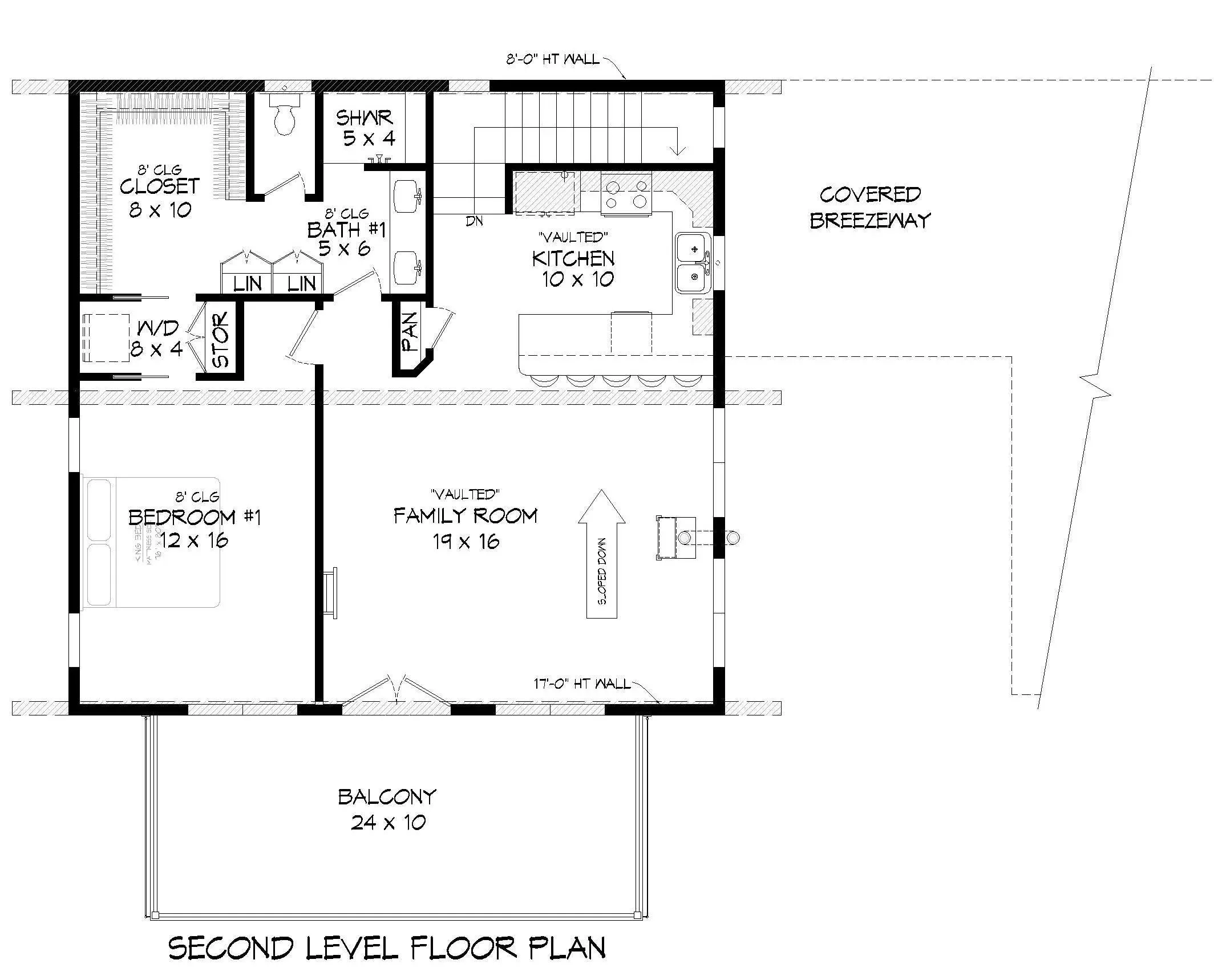
This thoughtfully designed 1,984 sq ft home features a distinctive layout that combines comfort and functionality. The first floor includes 992 sq ft dedicated to three cozy bedrooms, providing ample private space for family members. With a split bedroom design, the layout enhances privacy. A convenient first-floor laundry makes daily chores effortless, while vaulted ceilings in the common areas add an open, airy feel.
Ascend to the second floor, where you’ll discover the heart of the home—a welcoming family room and a well-appointed kitchen, complete with an eating bar for casual dining. The second floor also boasts a owner's suite with a luxurious bath featuring a double vanity sink. Additional highlights include a loft/balcony area, a hidden room, and access to a total of 429 sq ft of porch space, making this home perfect for entertaining or relaxing.





















