
Charming 1,800 sq ft Home with Functional Design
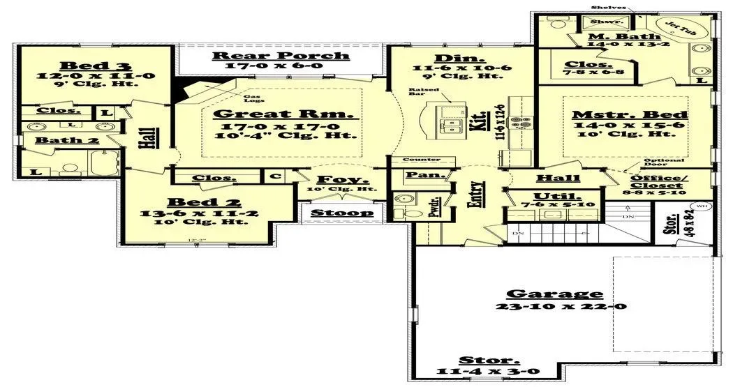
This thoughtfully designed house plan offers a total living area of 1,800 square feet, all on the first floor, making it ideal for easy accessibility and convenience. The layout includes three bedrooms and two and a half bathrooms, with a dedicated first-floor owner's suite featuring a spacious sitting area and a luxurious master bath with a double vanity sink. A mudroom enhances functionality, while a butler's pantry and kitchen island provide ample space for culinary adventures and entertaining.
The home also boasts a 131-square-foot rear porch, perfect for outdoor relaxation, and a side-load garage that accommodates two vehicles, providing 547 square feet of storage space. With a slab/crawl foundation and 2x4 wall framing, the structure ensures durability and efficiency. Additional highlights include a formal dining room, a home office/study for productivity, and abundant storage options throughout, making this residence a perfect blend of comfort and practicality for modern living.
This thoughtfully designed house plan offers a total living area of 1,800 square feet, all on the first floor, making it ideal for easy accessibility and convenience. The layout includes three bedrooms and two and a half bathrooms, with a dedicated first-floor owner's suite featuring a spacious sitting area and a luxurious master bath with a double vanity sink. A mudroom enhances functionality, while a butler's pantry and kitchen island provide ample space for culinary adventures and entertaining.
The home also boasts a 131-square-foot rear porch, perfect for outdoor relaxation, and a side-load garage that accommodates two vehicles, providing 547 square feet of storage space. With a slab/crawl foundation and 2x4 wall framing, the structure ensures durability and efficiency. Additional highlights include a formal dining room, a home office/study for productivity, and abundant storage options throughout, making this residence a perfect blend of comfort and practicality for modern living.
Original: $1,186.00
-70%$1,186.00
$355.80Description
This thoughtfully designed house plan offers a total living area of 1,800 square feet, all on the first floor, making it ideal for easy accessibility and convenience. The layout includes three bedrooms and two and a half bathrooms, with a dedicated first-floor owner's suite featuring a spacious sitting area and a luxurious master bath with a double vanity sink. A mudroom enhances functionality, while a butler's pantry and kitchen island provide ample space for culinary adventures and entertaining.
The home also boasts a 131-square-foot rear porch, perfect for outdoor relaxation, and a side-load garage that accommodates two vehicles, providing 547 square feet of storage space. With a slab/crawl foundation and 2x4 wall framing, the structure ensures durability and efficiency. Additional highlights include a formal dining room, a home office/study for productivity, and abundant storage options throughout, making this residence a perfect blend of comfort and practicality for modern living.





















