
Stylish Home with Walkout Basement (1,736 sq ft)
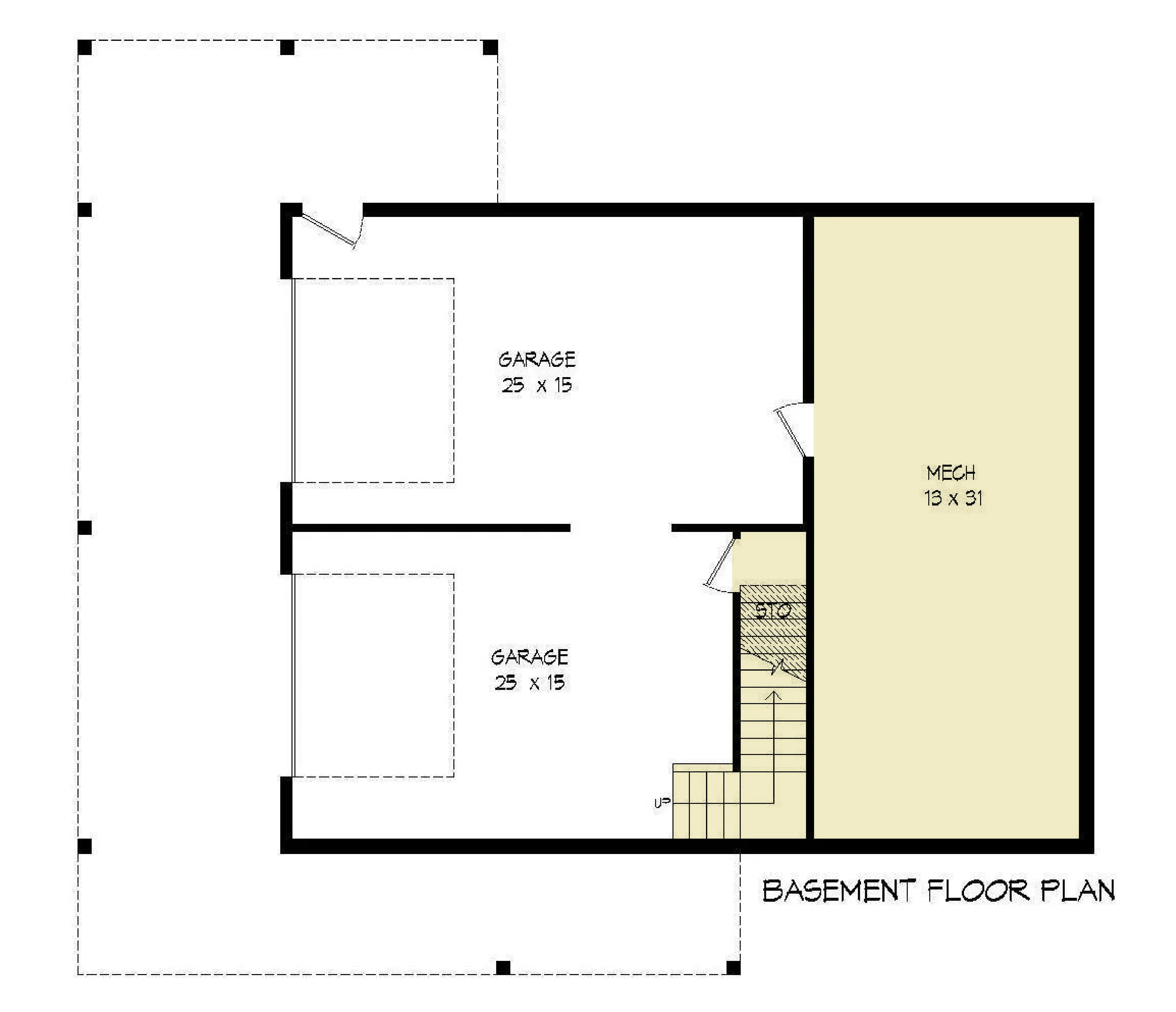
Discover this stylish home featuring a total living area of 1,736 sq ft, designed for modern living. The first floor offers 1,280 sq ft, ideal for entertaining and family gatherings, while the second floor adds an additional 456 sq ft for privacy and relaxation. The spacious basement, also measuring 1,280 sq ft, provides ample storage or versatile space for your needs.
Enjoy outdoor living on the generous 542 sq ft deck, perfect for barbecues and enjoying the fresh air. The home includes a side-load garage of 1,280 sq ft with two bays, making it convenient for parking and storage.
Built on a walkout basement foundation with durable 2x4 wall framing, this home measures 40' in width and 32' in depth, reaching a height of 26'10''. With a ceiling height of 10' on the first floor and 8' on the second floor, this home radiates a sense of openness and comfort. Ideal for families seeking a blend of style and functionality!
Discover this stylish home featuring a total living area of 1,736 sq ft, designed for modern living. The first floor offers 1,280 sq ft, ideal for entertaining and family gatherings, while the second floor adds an additional 456 sq ft for privacy and relaxation. The spacious basement, also measuring 1,280 sq ft, provides ample storage or versatile space for your needs.
Enjoy outdoor living on the generous 542 sq ft deck, perfect for barbecues and enjoying the fresh air. The home includes a side-load garage of 1,280 sq ft with two bays, making it convenient for parking and storage.
Built on a walkout basement foundation with durable 2x4 wall framing, this home measures 40' in width and 32' in depth, reaching a height of 26'10''. With a ceiling height of 10' on the first floor and 8' on the second floor, this home radiates a sense of openness and comfort. Ideal for families seeking a blend of style and functionality!
Original: $978.00
-70%$978.00
$293.40Description
Discover this stylish home featuring a total living area of 1,736 sq ft, designed for modern living. The first floor offers 1,280 sq ft, ideal for entertaining and family gatherings, while the second floor adds an additional 456 sq ft for privacy and relaxation. The spacious basement, also measuring 1,280 sq ft, provides ample storage or versatile space for your needs.
Enjoy outdoor living on the generous 542 sq ft deck, perfect for barbecues and enjoying the fresh air. The home includes a side-load garage of 1,280 sq ft with two bays, making it convenient for parking and storage.
Built on a walkout basement foundation with durable 2x4 wall framing, this home measures 40' in width and 32' in depth, reaching a height of 26'10''. With a ceiling height of 10' on the first floor and 8' on the second floor, this home radiates a sense of openness and comfort. Ideal for families seeking a blend of style and functionality!





















