
Spacious Family Home with In-Law Suite (2,484 sq ft)
Wish this home had an in-law suite?
Check out the Pinecone Trail House
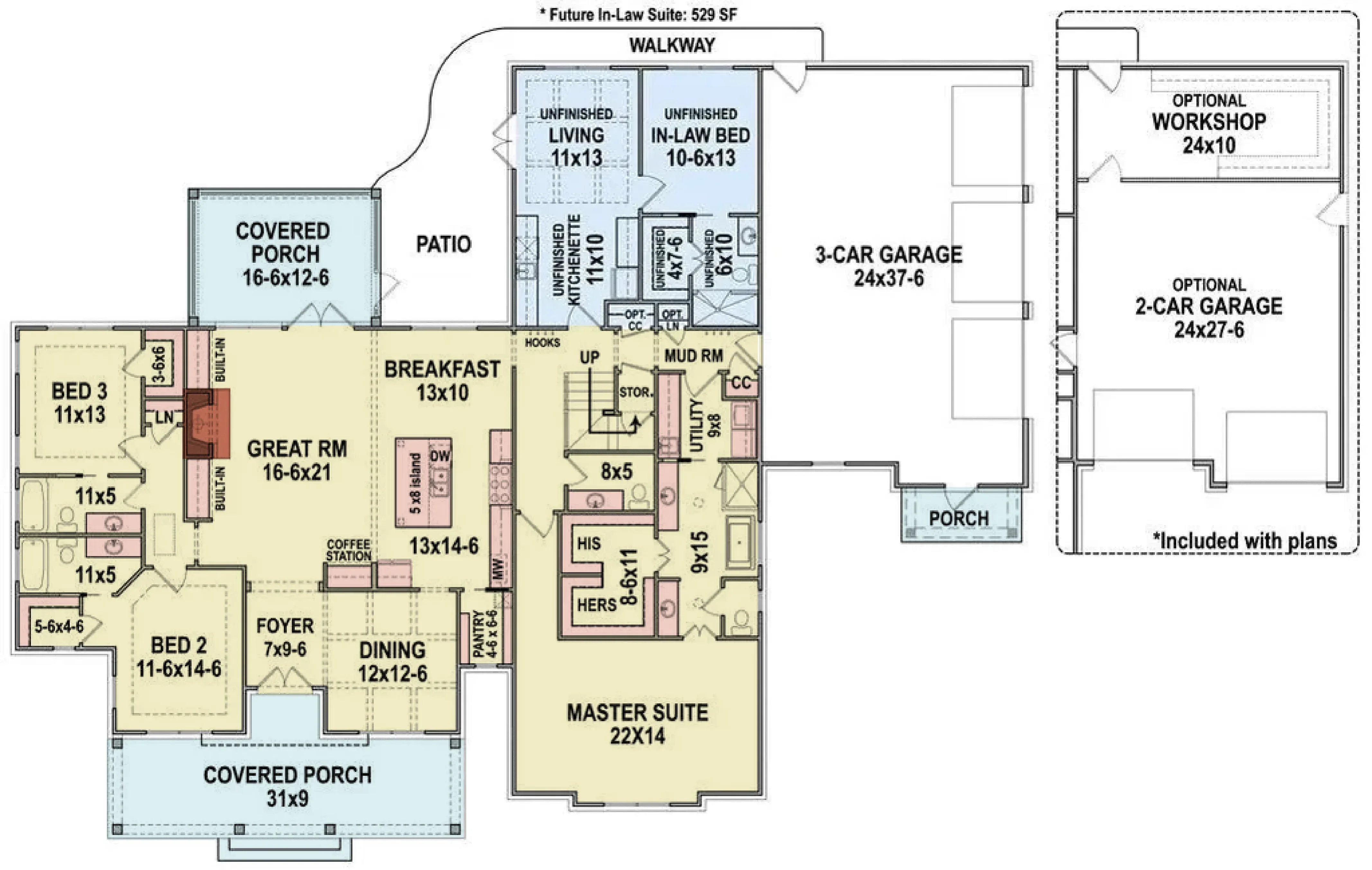
Inspired by the beautiful character of a farmhouse, the Acorn Trail one-story house plan is the perfect home for growing families, empty-nesters, and everyone in between! Every detail of this modern farmhouse plan was thoughtfully designed for your family!
Sprawling entertaining spaces flow outside to the outdoor covered porch and tranquil yard beyond. The bright and airy great room with warming fireplace and built-ins is the dramatic focal point of the main level, accompanied by an extraordinary chef's kitchen clad with professional-grade appliances, stunning marble counters, and soaring ceilings with decorative beams.
Privately tucked away is a divine master suite. This dreamy retreat is large enough for a king-size bed and roomy sitting area couples can enjoy for reading or morning coffee. The opulent bathroom is graced by a modern free-standing tub, two vanities, and a generous glass shower. Access to the laundry room from the master suite is practical and convenient.
The optional second floor(shown in blue)offers an unfinished media room and multi-use office/craft room with access to a full bathroom. This brightly lit bathroom and hallway are energy efficient and feature tubular skylights.
Additional amenities in this country house plan include a large walk-in pantry with floor to ceiling storage, private bathrooms for the spacious secondary bedrooms, and optional vaulted attic storage(shown in yellow)! Get value when you build the Acorn Trail farmhouse with all of the free storage under the roof.
The 2-car garage offers a 'future' pool bathroom layout, workbench and storage lockers for the family. Need more garage space? An optional 3-car garage layout is included in the construction plans at no cost to you!
Wish this home had an in-law suite?
Check out the Pinecone Trail House
Inspired by the beautiful character of a farmhouse, the Acorn Trail one-story house plan is the perfect home for growing families, empty-nesters, and everyone in between! Every detail of this modern farmhouse plan was thoughtfully designed for your family!
Sprawling entertaining spaces flow outside to the outdoor covered porch and tranquil yard beyond. The bright and airy great room with warming fireplace and built-ins is the dramatic focal point of the main level, accompanied by an extraordinary chef's kitchen clad with professional-grade appliances, stunning marble counters, and soaring ceilings with decorative beams.
Privately tucked away is a divine master suite. This dreamy retreat is large enough for a king-size bed and roomy sitting area couples can enjoy for reading or morning coffee. The opulent bathroom is graced by a modern free-standing tub, two vanities, and a generous glass shower. Access to the laundry room from the master suite is practical and convenient.
The optional second floor(shown in blue)offers an unfinished media room and multi-use office/craft room with access to a full bathroom. This brightly lit bathroom and hallway are energy efficient and feature tubular skylights.
Additional amenities in this country house plan include a large walk-in pantry with floor to ceiling storage, private bathrooms for the spacious secondary bedrooms, and optional vaulted attic storage(shown in yellow)! Get value when you build the Acorn Trail farmhouse with all of the free storage under the roof.
The 2-car garage offers a 'future' pool bathroom layout, workbench and storage lockers for the family. Need more garage space? An optional 3-car garage layout is included in the construction plans at no cost to you!
Description
Wish this home had an in-law suite?
Check out the Pinecone Trail House
Inspired by the beautiful character of a farmhouse, the Acorn Trail one-story house plan is the perfect home for growing families, empty-nesters, and everyone in between! Every detail of this modern farmhouse plan was thoughtfully designed for your family!
Sprawling entertaining spaces flow outside to the outdoor covered porch and tranquil yard beyond. The bright and airy great room with warming fireplace and built-ins is the dramatic focal point of the main level, accompanied by an extraordinary chef's kitchen clad with professional-grade appliances, stunning marble counters, and soaring ceilings with decorative beams.
Privately tucked away is a divine master suite. This dreamy retreat is large enough for a king-size bed and roomy sitting area couples can enjoy for reading or morning coffee. The opulent bathroom is graced by a modern free-standing tub, two vanities, and a generous glass shower. Access to the laundry room from the master suite is practical and convenient.
The optional second floor(shown in blue)offers an unfinished media room and multi-use office/craft room with access to a full bathroom. This brightly lit bathroom and hallway are energy efficient and feature tubular skylights.
Additional amenities in this country house plan include a large walk-in pantry with floor to ceiling storage, private bathrooms for the spacious secondary bedrooms, and optional vaulted attic storage(shown in yellow)! Get value when you build the Acorn Trail farmhouse with all of the free storage under the roof.
The 2-car garage offers a 'future' pool bathroom layout, workbench and storage lockers for the family. Need more garage space? An optional 3-car garage layout is included in the construction plans at no cost to you!





















