
Timeless Elegance: A Grand Classical Family Home Design
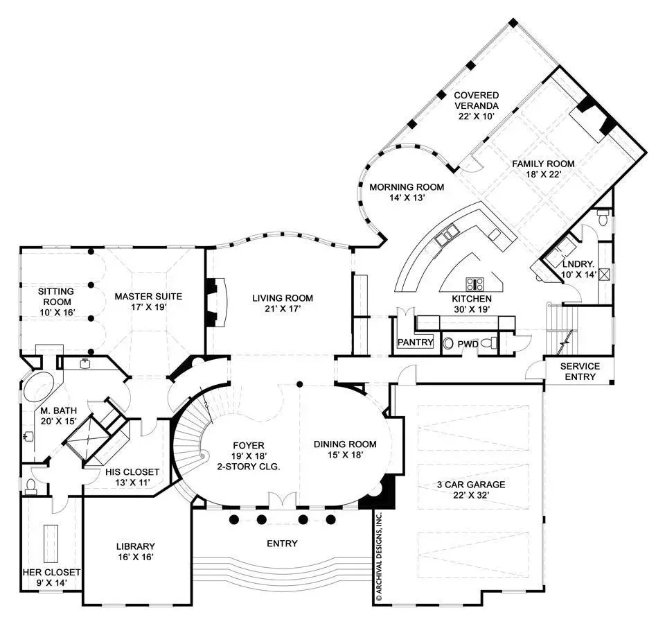
Key Features:
- Two-story portico with double sweeping staircases.
- Semi elliptical Dining Hall.
- Two-story grand room with fireplace and round coffered ceiling.
- Chef's Kitchen and Family Room and rear staircase with serpentine bowed windows
- Large 3 car garage.
- 1st floor Master Bedroom is 1000 sq. ft. with 16' ceiling.
- Octagonal Sitting Room with fireplace.
- Her bath splays through the floating vaults skyward to the serpentine window.
- His bath, fully circular in dimension walks throughout shower to her bath. Extravagant circular staircase.
- 22' rear of front entry. Sweeps you up to a 2nd floor past 12' Palladian window. Balcony looks toward foyer or unfolds to backyard.
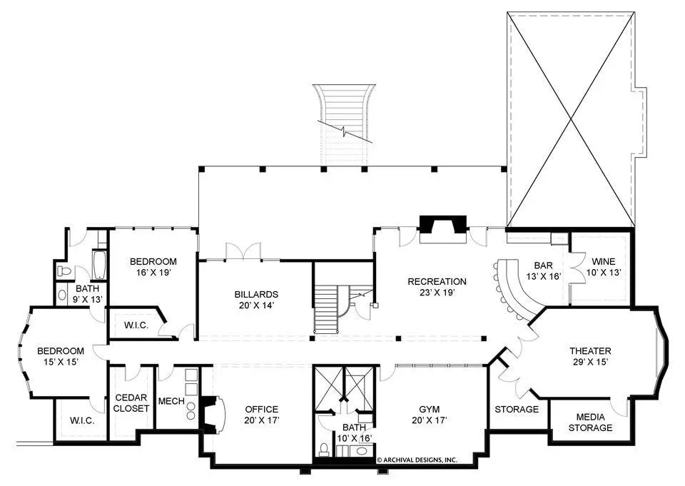
- 3 State Rooms each with a private bath.
- Window closet - one with private study.
- Upper level hallways of two-story house plan are 5' in width with cascading walls.
- Rear Gallery with built-in niches.
- Leads you to a back staircase and Billiards Room.
Key Features:
- Two-story portico with double sweeping staircases.
- Semi elliptical Dining Hall.
- Two-story grand room with fireplace and round coffered ceiling.
- Chef's Kitchen and Family Room and rear staircase with serpentine bowed windows
- Large 3 car garage.
- 1st floor Master Bedroom is 1000 sq. ft. with 16' ceiling.
- Octagonal Sitting Room with fireplace.
- Her bath splays through the floating vaults skyward to the serpentine window.
- His bath, fully circular in dimension walks throughout shower to her bath. Extravagant circular staircase.
- 22' rear of front entry. Sweeps you up to a 2nd floor past 12' Palladian window. Balcony looks toward foyer or unfolds to backyard.
- 3 State Rooms each with a private bath.
- Window closet - one with private study.
- Upper level hallways of two-story house plan are 5' in width with cascading walls.
- Rear Gallery with built-in niches.
- Leads you to a back staircase and Billiards Room.
Description
Key Features:
- Two-story portico with double sweeping staircases.
- Semi elliptical Dining Hall.
- Two-story grand room with fireplace and round coffered ceiling.
- Chef's Kitchen and Family Room and rear staircase with serpentine bowed windows
- Large 3 car garage.
- 1st floor Master Bedroom is 1000 sq. ft. with 16' ceiling.
- Octagonal Sitting Room with fireplace.
- Her bath splays through the floating vaults skyward to the serpentine window.
- His bath, fully circular in dimension walks throughout shower to her bath. Extravagant circular staircase.
- 22' rear of front entry. Sweeps you up to a 2nd floor past 12' Palladian window. Balcony looks toward foyer or unfolds to backyard.
- 3 State Rooms each with a private bath.
- Window closet - one with private study.
- Upper level hallways of two-story house plan are 5' in width with cascading walls.
- Rear Gallery with built-in niches.
- Leads you to a back staircase and Billiards Room.





















