
Elegant 4-Bedroom Home with Stone Exterior and Spacious Living
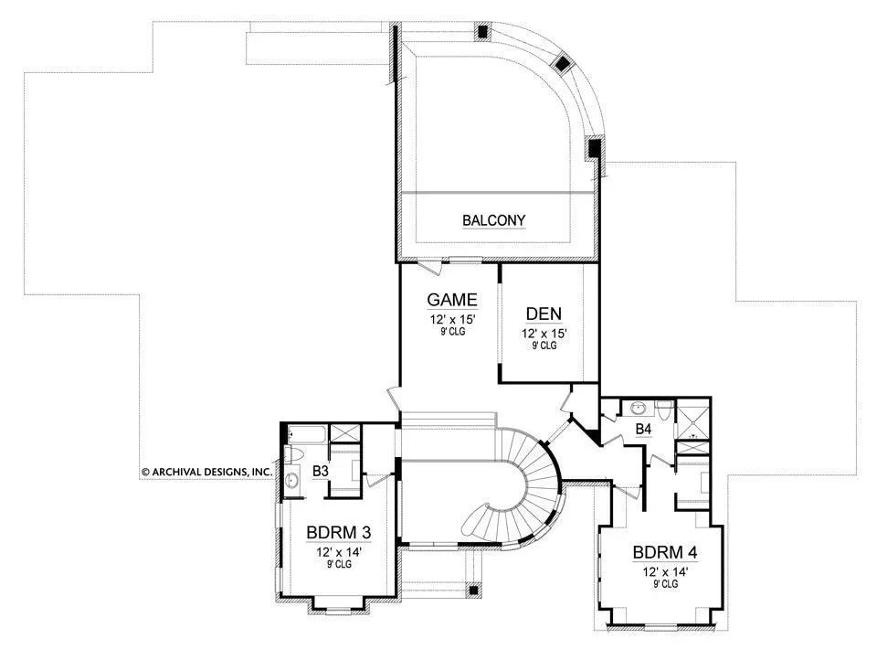
This elegant mansion house plan stands regal with an attractive turret with a cone-shaped roof, large windows with shutters and a towering covered entrance with grilled circle head over the doors. Entry through the double French doors into the foyer reveals the elegant sweeping curved stairway that rises to the second story of this floor plan and open to the elegant dining room.
Host gatherings for family and friends in style! A butler's pantry separates the elegant two-story dining room from the gourmet kitchen for ease in serving, while a corner pantry offers spacious space for food storage. A free-standing center island offers extra counter space, a necessity for any gourmet chef. Modern professional-grade appliances, granite countertops, pendant and recessed lighting, and a breakfast bar are some of the offerings in this grand kitchen.
Through the family room to the hallway of this two-story house plan, enter the master suite with large floor-to-ceiling windows that welcome morning and afternoon daylight. This European and French inspired house plan boasts a luxurious master marble and tile bath with his and hers vanities, private water closet, center jett tub, separate glass shower, and oversize wardrobe with built-ins.
This elegant mansion house plan stands regal with an attractive turret with a cone-shaped roof, large windows with shutters and a towering covered entrance with grilled circle head over the doors. Entry through the double French doors into the foyer reveals the elegant sweeping curved stairway that rises to the second story of this floor plan and open to the elegant dining room.
Host gatherings for family and friends in style! A butler's pantry separates the elegant two-story dining room from the gourmet kitchen for ease in serving, while a corner pantry offers spacious space for food storage. A free-standing center island offers extra counter space, a necessity for any gourmet chef. Modern professional-grade appliances, granite countertops, pendant and recessed lighting, and a breakfast bar are some of the offerings in this grand kitchen.
Through the family room to the hallway of this two-story house plan, enter the master suite with large floor-to-ceiling windows that welcome morning and afternoon daylight. This European and French inspired house plan boasts a luxurious master marble and tile bath with his and hers vanities, private water closet, center jett tub, separate glass shower, and oversize wardrobe with built-ins.
Description
This elegant mansion house plan stands regal with an attractive turret with a cone-shaped roof, large windows with shutters and a towering covered entrance with grilled circle head over the doors. Entry through the double French doors into the foyer reveals the elegant sweeping curved stairway that rises to the second story of this floor plan and open to the elegant dining room.
Host gatherings for family and friends in style! A butler's pantry separates the elegant two-story dining room from the gourmet kitchen for ease in serving, while a corner pantry offers spacious space for food storage. A free-standing center island offers extra counter space, a necessity for any gourmet chef. Modern professional-grade appliances, granite countertops, pendant and recessed lighting, and a breakfast bar are some of the offerings in this grand kitchen.
Through the family room to the hallway of this two-story house plan, enter the master suite with large floor-to-ceiling windows that welcome morning and afternoon daylight. This European and French inspired house plan boasts a luxurious master marble and tile bath with his and hers vanities, private water closet, center jett tub, separate glass shower, and oversize wardrobe with built-ins.





















