
Spacious 2-Bedroom Home with Walkout Basement, Home Office & Expansive Deck
This 3,250 sq. ft. single-story home offers a perfect blend of elegance and practicality, featuring 2 bedrooms, 2 full bathrooms, and 1 half bath. Designed for comfort and functionality, this home boasts an open layout with high-end features and ample storage.
The heart of the home is the great room, complete with a fireplace and seamless access to the covered back porch and deck (548 sq. ft.), perfect for outdoor relaxation and entertaining. The gourmet kitchen includes a large island, walk-in pantry, and a formal dining area, making it ideal for hosting. A home office/study provides a quiet workspace, while the first-floor master suite offers a luxurious retreat with a walk-in closet and spa-like bath.
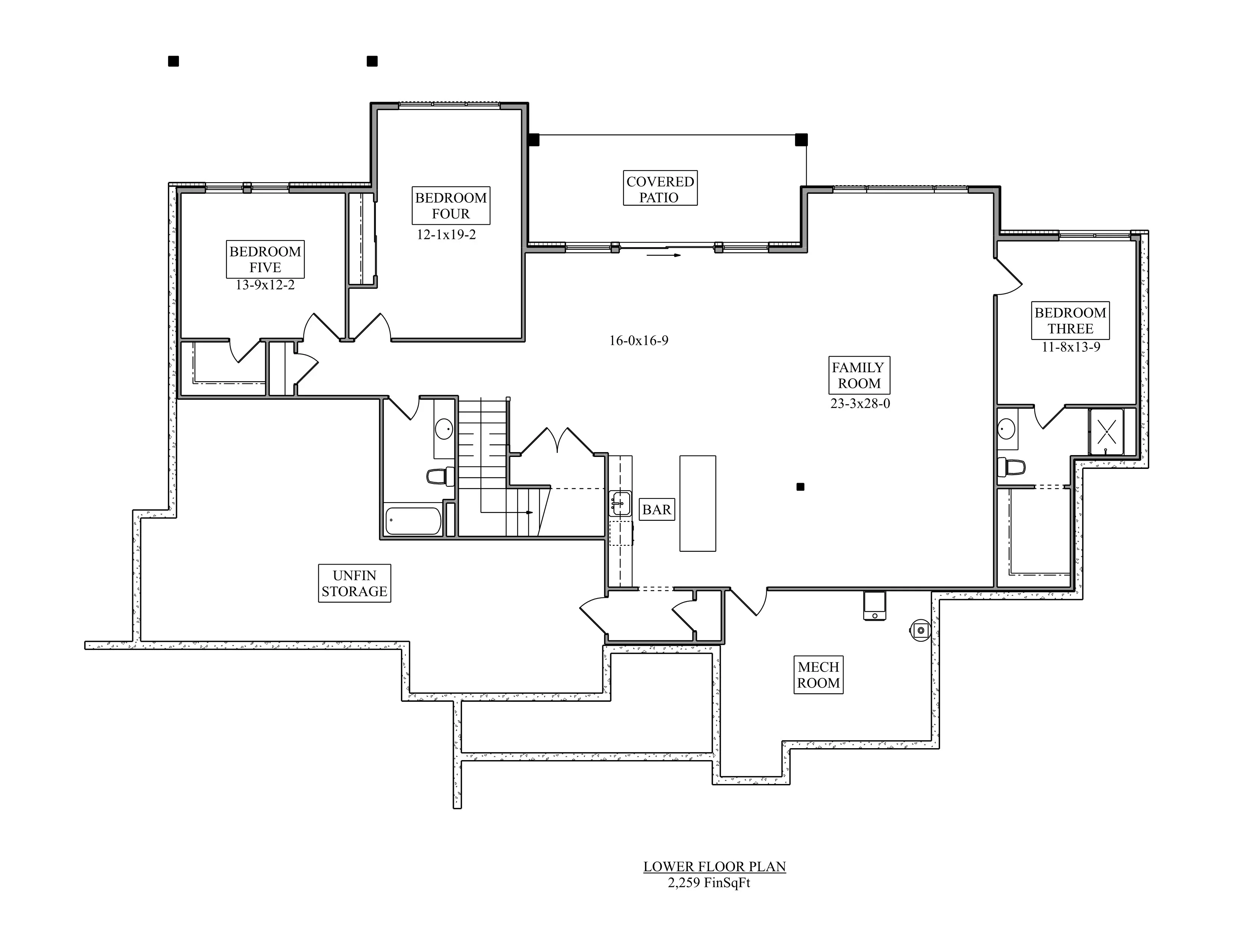
Additional conveniences include a first-floor laundry room, mudroom, and spacious walk-in closets throughout. The walkout basement (2,259 sq. ft.) provides endless potential for additional living space, a recreation area, or guest accommodations.
The front-load 3-car garage (1,295 sq. ft.) ensures ample storage and parking. With 10-foot ceilings on both floors, a 10:12 roof pitch, and a building height of 24'10'', this home feels grand yet inviting. Measuring 104'6'' wide by 80' deep
This 3,250 sq. ft. single-story home offers a perfect blend of elegance and practicality, featuring 2 bedrooms, 2 full bathrooms, and 1 half bath. Designed for comfort and functionality, this home boasts an open layout with high-end features and ample storage.
The heart of the home is the great room, complete with a fireplace and seamless access to the covered back porch and deck (548 sq. ft.), perfect for outdoor relaxation and entertaining. The gourmet kitchen includes a large island, walk-in pantry, and a formal dining area, making it ideal for hosting. A home office/study provides a quiet workspace, while the first-floor master suite offers a luxurious retreat with a walk-in closet and spa-like bath.
Additional conveniences include a first-floor laundry room, mudroom, and spacious walk-in closets throughout. The walkout basement (2,259 sq. ft.) provides endless potential for additional living space, a recreation area, or guest accommodations.
The front-load 3-car garage (1,295 sq. ft.) ensures ample storage and parking. With 10-foot ceilings on both floors, a 10:12 roof pitch, and a building height of 24'10'', this home feels grand yet inviting. Measuring 104'6'' wide by 80' deep
Description
This 3,250 sq. ft. single-story home offers a perfect blend of elegance and practicality, featuring 2 bedrooms, 2 full bathrooms, and 1 half bath. Designed for comfort and functionality, this home boasts an open layout with high-end features and ample storage.
The heart of the home is the great room, complete with a fireplace and seamless access to the covered back porch and deck (548 sq. ft.), perfect for outdoor relaxation and entertaining. The gourmet kitchen includes a large island, walk-in pantry, and a formal dining area, making it ideal for hosting. A home office/study provides a quiet workspace, while the first-floor master suite offers a luxurious retreat with a walk-in closet and spa-like bath.
Additional conveniences include a first-floor laundry room, mudroom, and spacious walk-in closets throughout. The walkout basement (2,259 sq. ft.) provides endless potential for additional living space, a recreation area, or guest accommodations.
The front-load 3-car garage (1,295 sq. ft.) ensures ample storage and parking. With 10-foot ceilings on both floors, a 10:12 roof pitch, and a building height of 24'10'', this home feels grand yet inviting. Measuring 104'6'' wide by 80' deep





















