
Spacious 2-Bedroom Home Plan with Expansive Deck and Basement
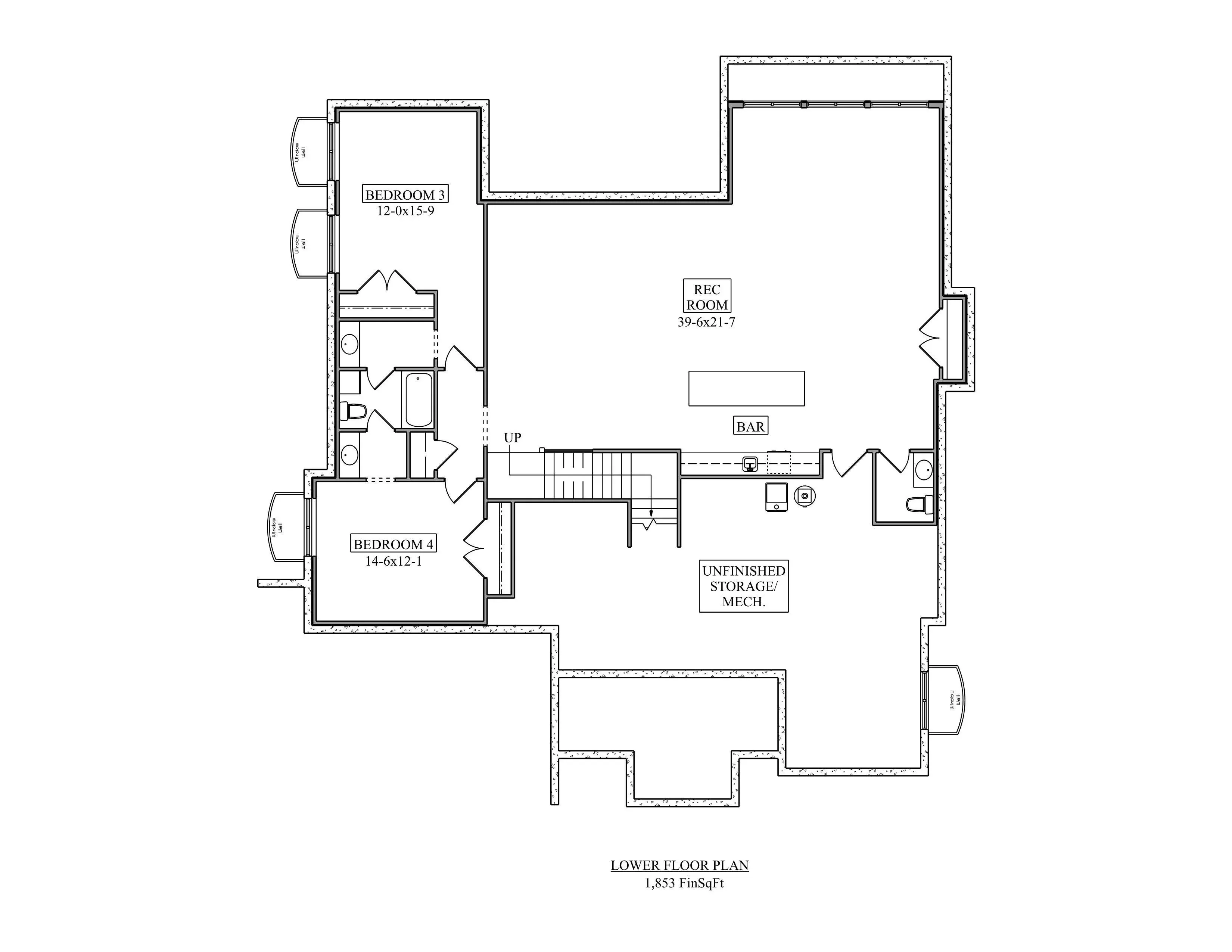
This beautifully designed house plan offers a total living area of 2,608 square feet, all on the first floor, making it ideal for easy accessibility and modern living. The layout features two spacious bedrooms and two well-appointed bathrooms, perfect for small families or guests. An expansive basement of 1,853 square feet provides additional space for recreation or storage, while the impressive deck of 1,196 square feet enhances outdoor living and entertaining opportunities. The front-load garage accommodates three vehicles, with a total area of 1,012 square feet, offering plenty of storage options. Built on a sturdy basement foundation with durable 2x6 wall framing and a classic brick exterior, this home combines strength and elegance. With overall dimensions of 72 feet in width and 83 feet 6 inches in depth, the building stands at a height of 24 feet 9 inches. Both the first floor and basement feature a ceiling height of 10 feet, creating an open and inviting atmosphere throughout. This house plan is the perfect blend of comfort, style, and functionality.
This beautifully designed house plan offers a total living area of 2,608 square feet, all on the first floor, making it ideal for easy accessibility and modern living. The layout features two spacious bedrooms and two well-appointed bathrooms, perfect for small families or guests. An expansive basement of 1,853 square feet provides additional space for recreation or storage, while the impressive deck of 1,196 square feet enhances outdoor living and entertaining opportunities. The front-load garage accommodates three vehicles, with a total area of 1,012 square feet, offering plenty of storage options. Built on a sturdy basement foundation with durable 2x6 wall framing and a classic brick exterior, this home combines strength and elegance. With overall dimensions of 72 feet in width and 83 feet 6 inches in depth, the building stands at a height of 24 feet 9 inches. Both the first floor and basement feature a ceiling height of 10 feet, creating an open and inviting atmosphere throughout. This house plan is the perfect blend of comfort, style, and functionality.
Original: $1,488.00
-70%$1,488.00
$446.40Description
This beautifully designed house plan offers a total living area of 2,608 square feet, all on the first floor, making it ideal for easy accessibility and modern living. The layout features two spacious bedrooms and two well-appointed bathrooms, perfect for small families or guests. An expansive basement of 1,853 square feet provides additional space for recreation or storage, while the impressive deck of 1,196 square feet enhances outdoor living and entertaining opportunities. The front-load garage accommodates three vehicles, with a total area of 1,012 square feet, offering plenty of storage options. Built on a sturdy basement foundation with durable 2x6 wall framing and a classic brick exterior, this home combines strength and elegance. With overall dimensions of 72 feet in width and 83 feet 6 inches in depth, the building stands at a height of 24 feet 9 inches. Both the first floor and basement feature a ceiling height of 10 feet, creating an open and inviting atmosphere throughout. This house plan is the perfect blend of comfort, style, and functionality.





















