
Classy home with two bedrooms, three-car garage, and basement.
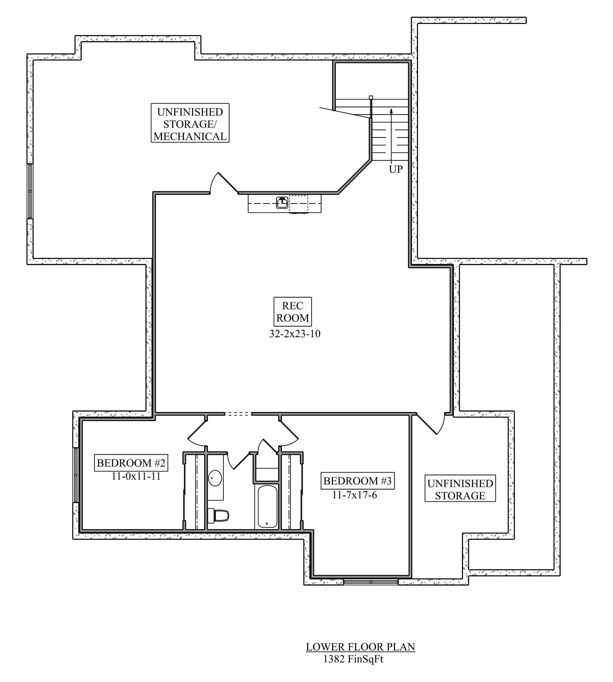
An impressive house plan that features a total heated living area of 2,320 square feet, all located on the first floor, complemented by a spacious basement measuring 1,386 square feet, providing additional living or storage options. The design includes a total porch area of 528 square feet, ideal for outdoor relaxation and entertainment. The garage is quite expansive at 1,472 square feet, featuring three bays and a front-load design for easy access. Inside, the home offers two bedrooms, two full bathrooms, and one half bathroom, accommodating both residents and guests comfortably. Built on a sturdy basement foundation, the house utilizes 2x6 wall framing for enhanced durability and insulation. With a width of 62 feet and a depth of 98 feet, it reaches a height of 23 feet 5 inches, featuring a first-floor and basement ceiling height of 10 feet, creating an open and inviting atmosphere throughout.
An impressive house plan that features a total heated living area of 2,320 square feet, all located on the first floor, complemented by a spacious basement measuring 1,386 square feet, providing additional living or storage options. The design includes a total porch area of 528 square feet, ideal for outdoor relaxation and entertainment. The garage is quite expansive at 1,472 square feet, featuring three bays and a front-load design for easy access. Inside, the home offers two bedrooms, two full bathrooms, and one half bathroom, accommodating both residents and guests comfortably. Built on a sturdy basement foundation, the house utilizes 2x6 wall framing for enhanced durability and insulation. With a width of 62 feet and a depth of 98 feet, it reaches a height of 23 feet 5 inches, featuring a first-floor and basement ceiling height of 10 feet, creating an open and inviting atmosphere throughout.
Description
An impressive house plan that features a total heated living area of 2,320 square feet, all located on the first floor, complemented by a spacious basement measuring 1,386 square feet, providing additional living or storage options. The design includes a total porch area of 528 square feet, ideal for outdoor relaxation and entertainment. The garage is quite expansive at 1,472 square feet, featuring three bays and a front-load design for easy access. Inside, the home offers two bedrooms, two full bathrooms, and one half bathroom, accommodating both residents and guests comfortably. Built on a sturdy basement foundation, the house utilizes 2x6 wall framing for enhanced durability and insulation. With a width of 62 feet and a depth of 98 feet, it reaches a height of 23 feet 5 inches, featuring a first-floor and basement ceiling height of 10 feet, creating an open and inviting atmosphere throughout.





















