
Estes Park House Plan
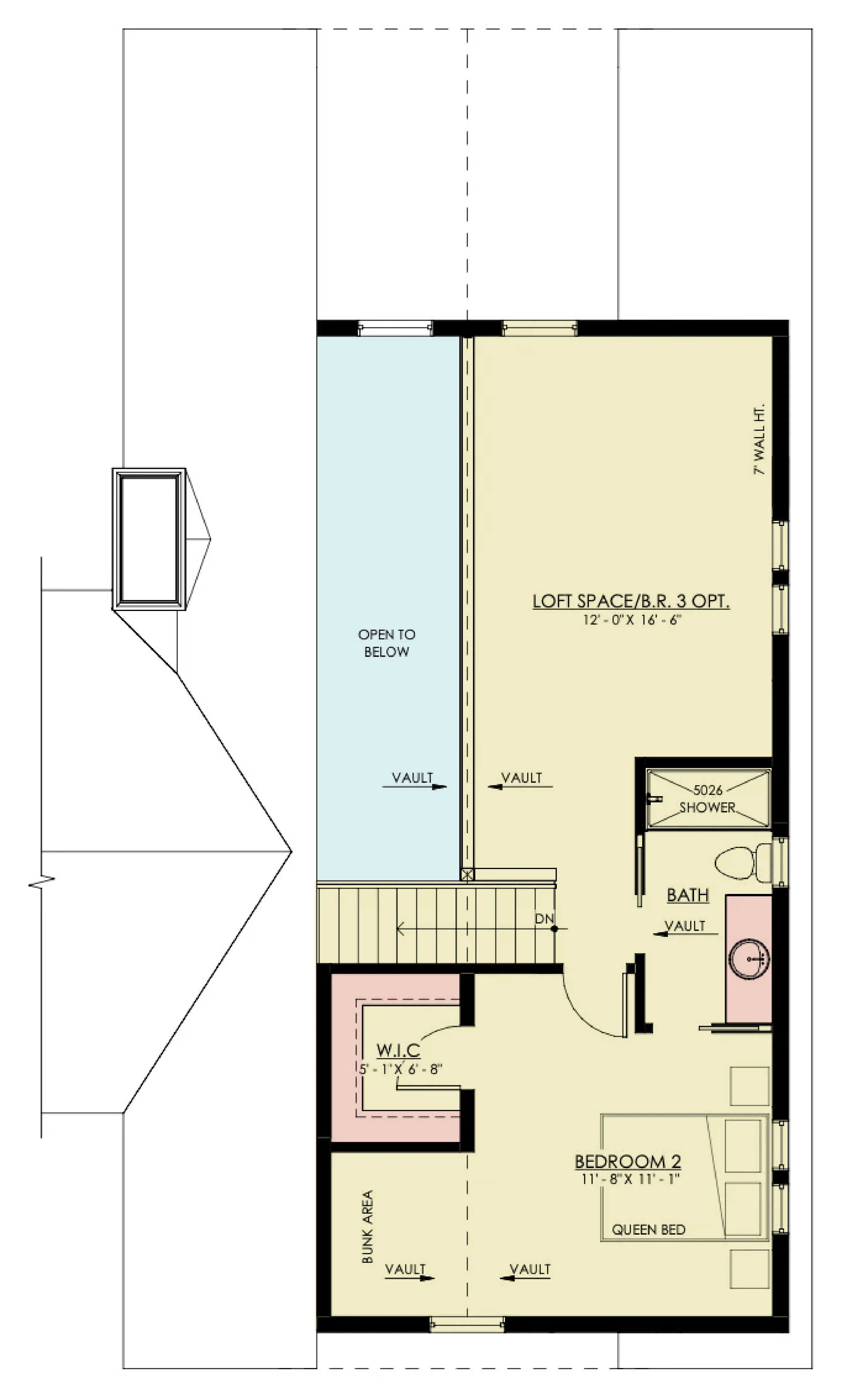
This house plan offers a spacious and functional two-story home with a total living area of 1,662 square feet. The first floor encompasses 1,088 square feet, while the second floor adds 574 square feet of living space. In addition, the home features a 250 square foot deck and a 46 square foot front porch, perfect for outdoor living. The garage, with two front-load bays, provides 567 square feet of space. The house includes three bedrooms, two full bathrooms, and one half bathroom. A crawl space foundation supports the structure, while the walls are framed with durable 2x6 lumber, and the roof uses truss framing. Key features of the home include a first-floor master suite for added privacy, a spacious great room for gathering, and a convenient first-floor laundry. The second floor includes a loft area, ideal for a home office or additional living space, and a mudroom is located on the main floor for practicality. Additionally, a walk-in pantry offers ample storage in the kitchen. The home’s dimensions are 57'4" in width and 49'6" in depth, with a total building height of 26'4". The ceiling heights on the first and second floors are 9' and 7', respectively. This thoughtfully designed plan is perfect for families seeking a blend of comfort, style, and functionality.
This house plan offers a spacious and functional two-story home with a total living area of 1,662 square feet. The first floor encompasses 1,088 square feet, while the second floor adds 574 square feet of living space. In addition, the home features a 250 square foot deck and a 46 square foot front porch, perfect for outdoor living. The garage, with two front-load bays, provides 567 square feet of space. The house includes three bedrooms, two full bathrooms, and one half bathroom. A crawl space foundation supports the structure, while the walls are framed with durable 2x6 lumber, and the roof uses truss framing. Key features of the home include a first-floor master suite for added privacy, a spacious great room for gathering, and a convenient first-floor laundry. The second floor includes a loft area, ideal for a home office or additional living space, and a mudroom is located on the main floor for practicality. Additionally, a walk-in pantry offers ample storage in the kitchen. The home’s dimensions are 57'4" in width and 49'6" in depth, with a total building height of 26'4". The ceiling heights on the first and second floors are 9' and 7', respectively. This thoughtfully designed plan is perfect for families seeking a blend of comfort, style, and functionality.
Description
This house plan offers a spacious and functional two-story home with a total living area of 1,662 square feet. The first floor encompasses 1,088 square feet, while the second floor adds 574 square feet of living space. In addition, the home features a 250 square foot deck and a 46 square foot front porch, perfect for outdoor living. The garage, with two front-load bays, provides 567 square feet of space. The house includes three bedrooms, two full bathrooms, and one half bathroom. A crawl space foundation supports the structure, while the walls are framed with durable 2x6 lumber, and the roof uses truss framing. Key features of the home include a first-floor master suite for added privacy, a spacious great room for gathering, and a convenient first-floor laundry. The second floor includes a loft area, ideal for a home office or additional living space, and a mudroom is located on the main floor for practicality. Additionally, a walk-in pantry offers ample storage in the kitchen. The home’s dimensions are 57'4" in width and 49'6" in depth, with a total building height of 26'4". The ceiling heights on the first and second floors are 9' and 7', respectively. This thoughtfully designed plan is perfect for families seeking a blend of comfort, style, and functionality.





















