
Charming 2-Bedroom Home Plan with Walkout Basement
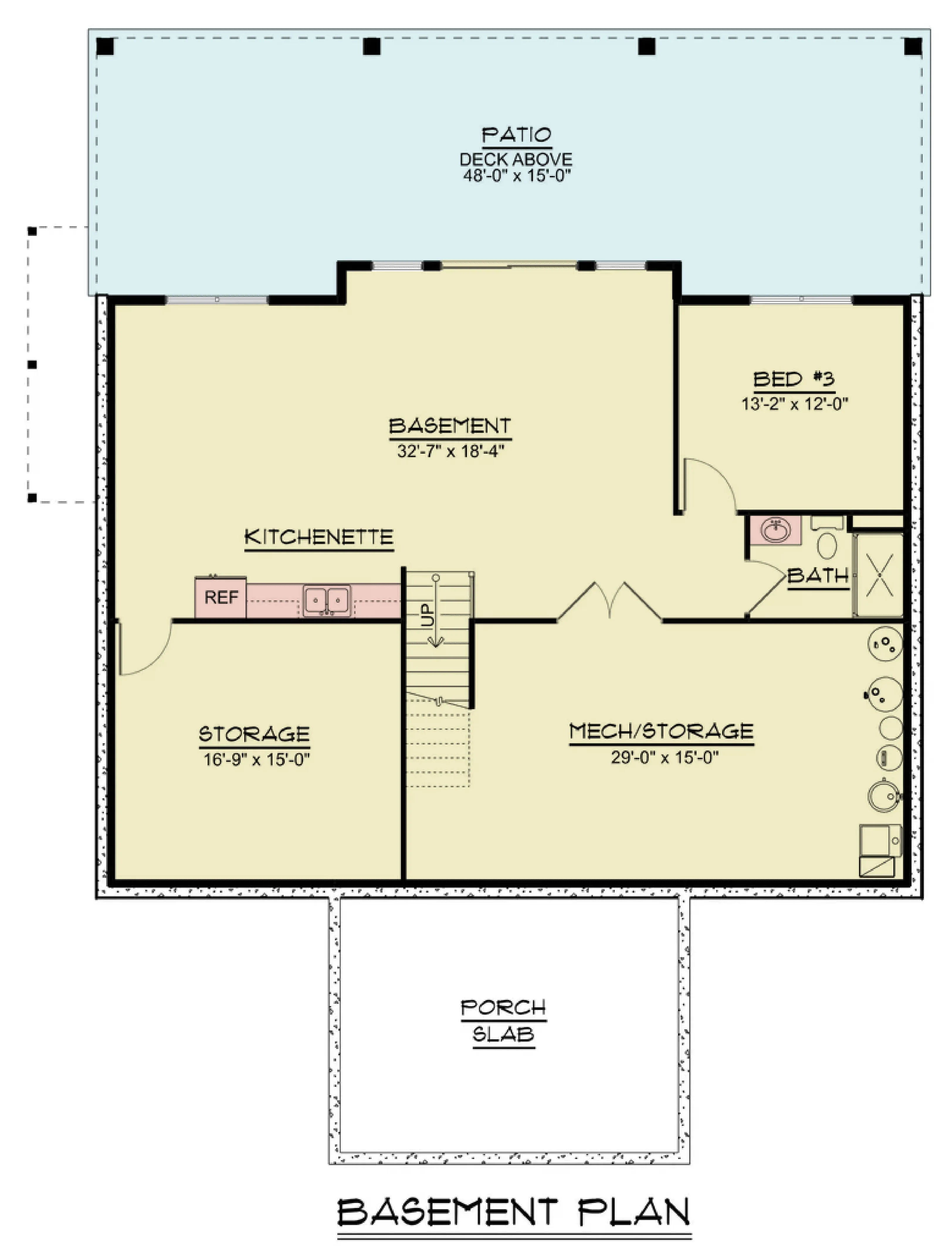
Welcome to your ideal retreat! This thoughtfully designed house plan features a spacious total living area of 1,679 sq ft all on the first floor, making it perfect for comfortable living. With two generous bedrooms and two well-appointed bathrooms, this home offers a cozy yet functional layout, ideal for small families, couples, or those seeking a low-maintenance lifestyle.
Step outside to enjoy the expansive 657 sq ft deck, perfect for outdoor entertaining, relaxation, or enjoying beautiful views. An additional 300 sq ft of porch space enhances your outdoor living options. The walkout basement adds an impressive 1,720 sq ft of unheated space, offering great potential for future expansion or storage. Built on a sturdy walkout basement foundation with durable 2x6 wall framing, this home features a modern roof pitch of 2:12 and an inviting exterior. With dimensions of 52' in width and 65' in depth, along with ceiling heights of 9' on both the first floor and basement, this house plan beautifully combines style and practicality, making it the perfect choice for your next home.
Welcome to your ideal retreat! This thoughtfully designed house plan features a spacious total living area of 1,679 sq ft all on the first floor, making it perfect for comfortable living. With two generous bedrooms and two well-appointed bathrooms, this home offers a cozy yet functional layout, ideal for small families, couples, or those seeking a low-maintenance lifestyle.
Step outside to enjoy the expansive 657 sq ft deck, perfect for outdoor entertaining, relaxation, or enjoying beautiful views. An additional 300 sq ft of porch space enhances your outdoor living options. The walkout basement adds an impressive 1,720 sq ft of unheated space, offering great potential for future expansion or storage. Built on a sturdy walkout basement foundation with durable 2x6 wall framing, this home features a modern roof pitch of 2:12 and an inviting exterior. With dimensions of 52' in width and 65' in depth, along with ceiling heights of 9' on both the first floor and basement, this house plan beautifully combines style and practicality, making it the perfect choice for your next home.
Original: $1,063.00
-70%$1,063.00
$318.90Description
Welcome to your ideal retreat! This thoughtfully designed house plan features a spacious total living area of 1,679 sq ft all on the first floor, making it perfect for comfortable living. With two generous bedrooms and two well-appointed bathrooms, this home offers a cozy yet functional layout, ideal for small families, couples, or those seeking a low-maintenance lifestyle.
Step outside to enjoy the expansive 657 sq ft deck, perfect for outdoor entertaining, relaxation, or enjoying beautiful views. An additional 300 sq ft of porch space enhances your outdoor living options. The walkout basement adds an impressive 1,720 sq ft of unheated space, offering great potential for future expansion or storage. Built on a sturdy walkout basement foundation with durable 2x6 wall framing, this home features a modern roof pitch of 2:12 and an inviting exterior. With dimensions of 52' in width and 65' in depth, along with ceiling heights of 9' on both the first floor and basement, this house plan beautifully combines style and practicality, making it the perfect choice for your next home.





















