
Elegant Home with Versatile Basement (1,610 sq ft)
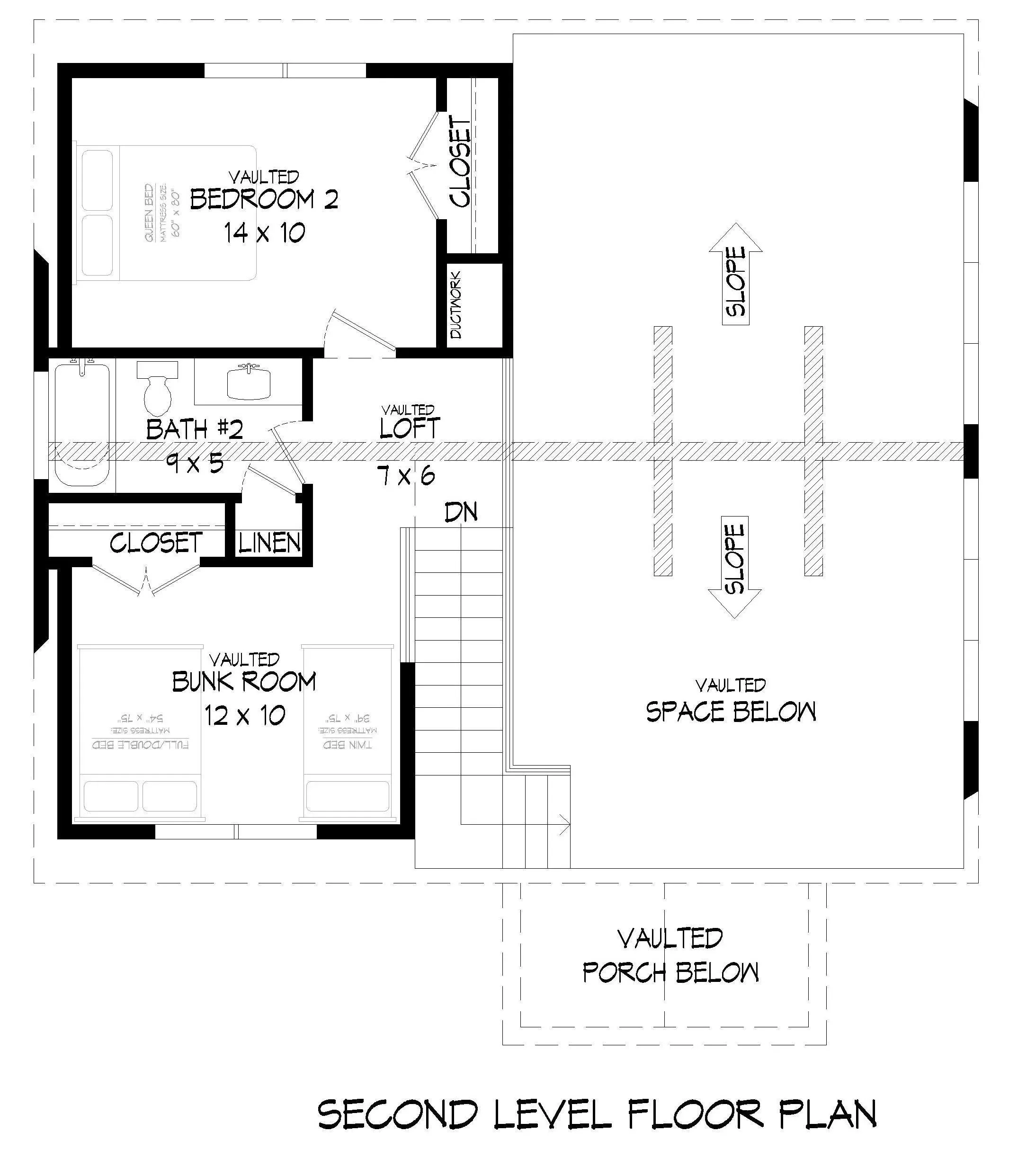
Discover this elegant home designed for modern living, offering a total heated area of 1,610 sq ft. The spacious first floor features 1,120 sq ft, perfect for entertaining and family gatherings. The second floor adds an additional 490 sq ft, ideal for bedrooms or a cozy retreat.
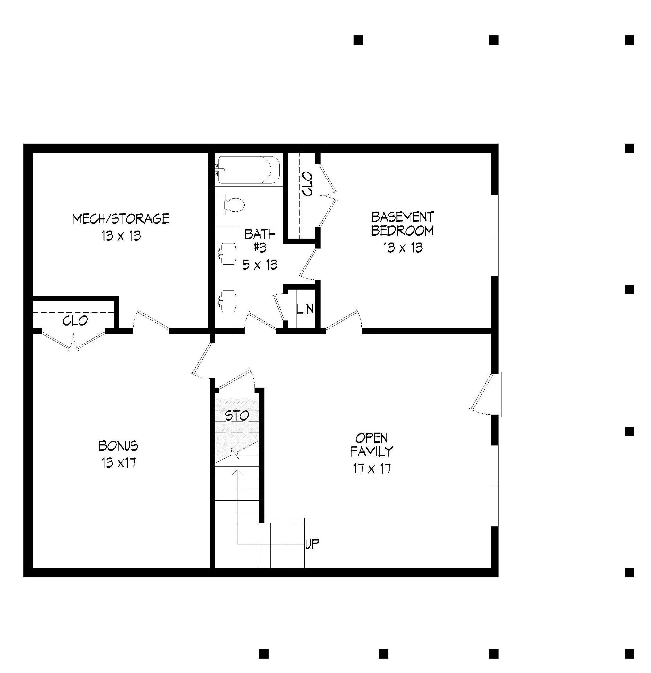
The versatile basement provides 168 sq ft, allowing for extra storage or a flexible space that can adapt to your lifestyle. Enjoy the outdoors with a total porch area of 651 sq ft, providing ample room for relaxation and outdoor activities.
Constructed with sturdy 2x6 wall framing on a basement foundation, this home measures 45' in width and 46' in depth, standing at a height of 21'-2''. The first floor boasts a ceiling height of 10', creating an open and airy atmosphere, while the second floor features a comfortable 9' ceiling height. This home is perfect for families seeking a blend of style, comfort, and functionality!
Discover this elegant home designed for modern living, offering a total heated area of 1,610 sq ft. The spacious first floor features 1,120 sq ft, perfect for entertaining and family gatherings. The second floor adds an additional 490 sq ft, ideal for bedrooms or a cozy retreat.
The versatile basement provides 168 sq ft, allowing for extra storage or a flexible space that can adapt to your lifestyle. Enjoy the outdoors with a total porch area of 651 sq ft, providing ample room for relaxation and outdoor activities.
Constructed with sturdy 2x6 wall framing on a basement foundation, this home measures 45' in width and 46' in depth, standing at a height of 21'-2''. The first floor boasts a ceiling height of 10', creating an open and airy atmosphere, while the second floor features a comfortable 9' ceiling height. This home is perfect for families seeking a blend of style, comfort, and functionality!
Description
Discover this elegant home designed for modern living, offering a total heated area of 1,610 sq ft. The spacious first floor features 1,120 sq ft, perfect for entertaining and family gatherings. The second floor adds an additional 490 sq ft, ideal for bedrooms or a cozy retreat.
The versatile basement provides 168 sq ft, allowing for extra storage or a flexible space that can adapt to your lifestyle. Enjoy the outdoors with a total porch area of 651 sq ft, providing ample room for relaxation and outdoor activities.
Constructed with sturdy 2x6 wall framing on a basement foundation, this home measures 45' in width and 46' in depth, standing at a height of 21'-2''. The first floor boasts a ceiling height of 10', creating an open and airy atmosphere, while the second floor features a comfortable 9' ceiling height. This home is perfect for families seeking a blend of style, comfort, and functionality!





















